您的位置: 红鼠游戏 > 新闻资讯 > 软件教程

新闻资讯

  • 河南中泰恩城集团总部掌舵人:董事长身份大起底

    在当今快速发展的商业环境中,河南中泰恩城集团作为行业内的佼佼者,其成功背后离不开一位卓越领导者的引领。这位领导者就是中泰恩城集团总部的董事长,一位在商界享有盛誉的人物。河南中泰恩城集团是一家多元化经营的企业,涉及多个领域,包括但不限于房地产开发、物业管理、酒店

    2024-10-20
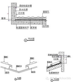
  • 节点大样图详解与应用

    在现代科技与工程领域中,我们常常会遇到一个术语——“节点大样图”。它不仅是一个专业概念,更是一种直观展示系统结构和关系的工具。本文将详细解读节点大样图的概念、特点以及它在实际中的应用。一、节点大样图的基本定义节点大样图,顾名思义,是以节点为基本构成元素的一种图

    2024-10-20
  • 影音嗅探专家:为何黄色标注地址成为下载宝藏的隐秘指引?

    探索影音世界的秘密:为什么影音嗅探专家中的黄色地址如此引人注目?在数字娱乐的浩瀚宇宙中,影音资源如同繁星点点,吸引着无数探索者的目光。而在这一过程中,影音嗅探专家(泛指一类能够识别、解析并提取在线视频、音频信息的软件或工具)成为了不少影音爱好者的得力助手。你是

    2024-10-20
  • !100000真的是十万吗?答案让你大吃一惊!

    在浩瀚的数字宇宙中,每一个数字都承载着特定的意义与价值,它们不仅是计量的工具,更是人类思维与文明发展的见证。当我们面对“100000是十万吗”这一看似简单实则蕴含深意的问题时,不妨从多个维度深入剖析,以揭示其背后的逻辑与奥秘。一、数学定义上的直接性首先,从数学

    2024-10-20
  • 户外装备界:巍德与凯乐石,两大品牌的神秘联系与独特魅力!

    在户外运动装备领域,巍德(vaude)与凯乐石(kailas)是两个备受瞩目的品牌。尽管它们在市场上的定位和产品线有所不同,但深入了解后会发现,这两个品牌之间存在着千丝万缕的联系。本文将从品牌历史、市场定位、合作关系等方面,探讨巍德与凯乐石之间的关系。品牌历史

    2024-10-20
  • 雪村与赵英俊是否为同一人

    在纷繁复杂的网络世界中,热门文章和讨论话题层出不穷,其中一个常被提及且引发广泛讨论的话题便是:“雪村和赵英俊是不是一个人?”这个问题看似简单,实则蕴含了两位音乐人不同的成长经历与艺术成就。不同的出生背景与教育经历首先,从基本资料来看,雪村原名韩剑,1969年4

    2024-10-20
  • 兴业银行理财卡您的财富增长新伙伴

    在当今快速变化的金融环境中,寻找一个既安全又便捷的理财工具是很多人的共同需求。兴业银行理财卡正是这样一个理想的解决方案,它不仅提供了传统的银行卡功能,还融合了多种理财服务,旨在帮助用户更好地管理个人财务,实现财富增值。一、什么是兴业银行理财卡?兴业银行理财卡是

    2024-10-20
  • 京骂是什么意思?北京方言中的独特表达

    京骂,即北京方言中的脏话或粗口,是一种特定地区文化背景下的语言现象。它不仅反映了北京地区的方言特色,还承载着当地居民的生活态度、情感表达方式以及社会文化的变迁。本文将从历史背景、文化内涵、社会影响等多维度探讨“京骂”的含义及其背后的社会意义。一、历史背景“京骂

    2024-10-20